Einfamilienhaus Grenzach Wyhlen
Bauherr: Familie B
Planung: wilhelm und hovenbitzer, Freie Architekten BDA
Fotos: Thomas Richard Krauss
Dauer: 2024-2025
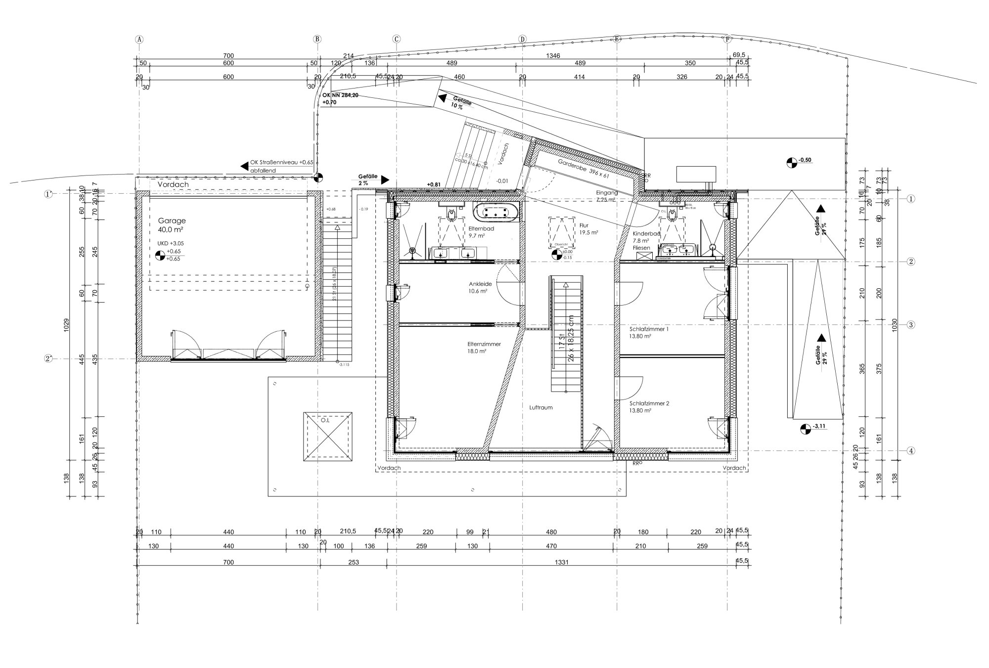
In steiler Hanglage befindet sich der Baukörper an einem Geländeversprung zur Strasse und schliesst mit einer maximal geschlossenen Fassade als „Schutzmantel“ zur Nordseite ab. Eine homogene Haut aus Aluminiumblech stülpt sich über den ganzen asymmetrischen Satteldachbaukörper, der sich nach Süden, zum Tal, grosszügig öffnet. Der ganze Grundriss organisiert sich um eine zentrale Innentreppe, Dreh- und Angelpunkt des ganzen Hauses. Der zweigeschossige Luftraum orientiert sich in die Weite des Tals und den schönen Baumbestand des Gartens.








